Bạn đang đau đầu suy nghĩ xem nên đặt nội thất chung cư trong căn hộ nhỏ nhà mình thế nào, bạn không biết nên mua nội thất gì cho phù hợp với không gian nhà. Tất cả những băn khoăn đó của bạn sẽ được tháo gỡ khi đến với Nội thất hot.
Với không gian sống có diện tích khiêm tốn, thật khó để mua nội thất kê vào nhà phù hợp bởi trên thị trường phần lớn bày bán những nội thất lớn dùng cho nhà rộng. Nhưng với việc thiết kế trước khi thi công nội thất sẽ làm cho không gian tiết kiệm diện tích, đảm bảo sự thẩm mỹ cũng như kế cấu nội thất.
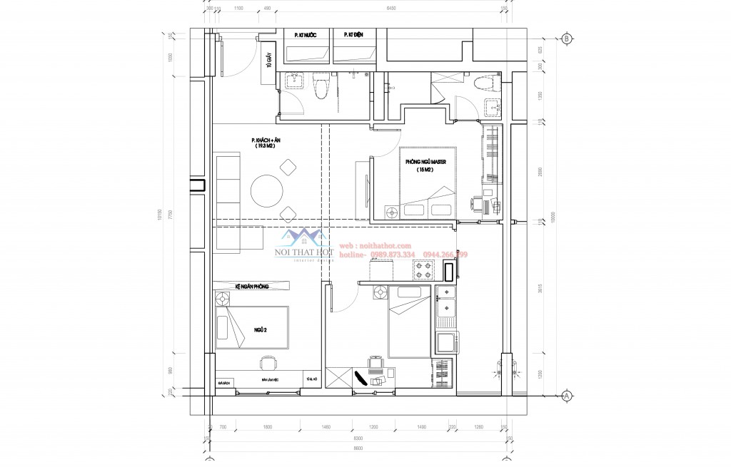
Sau đây chúng tôi sẽ giới thiệu tới quý khách hàng và những người có niềm đam mê về nội thất mẫu thiết kế nội thất chung cư diện tích nhỏ 80m2 Ngô Tất Tố

Thiết kế căn chung cư 80m2 Ngô Tất Tố
Toàn bộ nội thất chung cư được thiết kế theo phong cách hiện đại với 2 màu chủ đạo là màu nâu của nội thất và màu trắng của nhà kết hợp hài hòa, đem lại một không gian ấm cúng nhưng không kém phần sang trọng.
Sử dụng chất liệu gỗ Laminate cốt MDF xanh chống ẩm tạo nét hiện đại và thẩm mỹ cho sản phẩm nội thất cũng như đảm bảo chất lượng để sử dụng lâu dài.
Thiết kế nội thất phòng bếp
Với không gian nhỏ, việc thiết kế một phòng bếp lớn là điều rất khó, vì vậy tôi sẽ tập trung vào thiết kế một phòng bếp nhỏ nhưng đầy đủ chức năng cũng như không gian để chứa tất cả những vật dụng nấu ăn cần thiết. Với thiết kế này, tủ bếp được thiết kế kịch trần để tạo thêm không gian lưu trữ đồ đạc, không quên để một hộc để tủ lạnh.
Thiết kế nội thất phòng bếp nhỏ nhưng đầy đủ chức năng
Thiết kế nội thất phòng khách
Phòng khách nhỏ xinh nhưng nếu bạn biết cách chọn nội thất thì bạn sẽ có một không gian tiếp khách thoải mái. Với phòng khách này, tôi sẽ chọn một bộ sofa nỉ chữ L kê sát tường tiết kiệm diện tích và tạo lối đi lại rộng rãi, bàn trà tròn, 2 ghế đôn tròn cùng tone màu với gối ôm.

Đối diện với bộ sofa nỉ màu kem là kệ tivi. Thích hợp hơn cả là kệ tivi treo có thiết kế các đợt tran trí xinh xắn.
Thiết kế kệ tivi đẹp cho không gian phòng khách nhỏ
Với không gian nhỏ, bạn không nên dùng bức tường để ngăn, điều này càng làm cho không gian nhỏ bé đi, thay vì những bức tường khô khan, chúng ta nên thiết kế vách ngăn – vách trang trí để ngăn hai không gian với nhau. Vách trang trí còn có tác dụng làm giá sách rất tiện lợi.
Thiết kế nội thất phòng ngủ
Trong nội thất chung cư phòng ngủ của căn chung cư được thiết kế có ô cửa sổ lớn đảm bảo cung cấp đầy đủ ánh sáng tự nhiên cho căn phòng. Ở gần cửa sổ, chúng tôi thiết kế một bàn làm việc hai bên có thiết kế ngăn kéo để đồ, bên phải là giá sách cao nhiều tầng tiện lợi
Giường ngủ và táp đầu giường được thiết kế với màu trắng nổi bật trên mặt sàn có màu vân gỗ
Căn phòng ngủ nhỏ nhưng tiện nghi thoải mái
Nếu quý khách có nhu cầu thiết kế nội thất chung cư cho căn hộ nhỏ của mình, hãy liên hệ ngay với chúng tôi qua thông tin bên dưới chân trang để hỗ trợ tư vấn.




